Saturday, November 28, 2009

PLANOS DE CASA COLONIAL DE 2 PLANTAS 240m2


Planos de residencia de 2 plantas en lotes de 12.00 M de frente. Fachada elegantemente protegida por Entrada en Arco y Porch en puerta de Sala Principal, ventanal tipo “Baywindow”en Recámara Principal. Garaje abierto para Dos vehiculos, area verde frontal y jardin posterior. Area: 240.21 M2

Acerca del proyecto: Prados del Merendón es un Desarrollo exclusivo con tan sólo 15 Residencias enmarcadas en un entorno residencial resguardado por Pórtico de Seguridad y muro perimetral. Se ubica en la zona residencial de más alta plusvalía de San Pedro Sula en la vecindad de La Veranda, La Foresta, Los Cedros y Villas MacKay. Los Diseños Arquitectónicos de las residencias, tal como se indican en el Conjunto, presentan Tres modelos, con aéreas de construcción aproximadas a los 241.00 M2, que se distribuyen de acuerdo a los tamaños de lotes que varían de 435.00V2 hasta las 600.00 V2.
Cada modelo finamente acabado, se desarrolla en Dos Plantas con retiros de construcción que permiten área verde frontal y posterior.
Fuente: pradosmerendon.com

Thursday, November 19, 2009

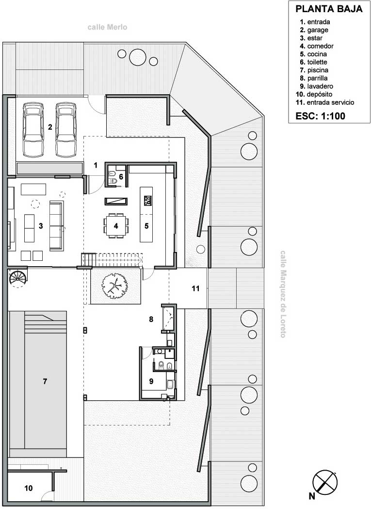
PLANO DE VIVIENDA UNIFAMILIAR EN ESQUINA DE 220 M2 EN UN TERRENO DE 450 M2

Una bella casa de 220 m2 construída en un terreno de 450 m2, con 3 dormitorios. La obra se llama Casa RC y esta ubicada en Castelar, provincia de Buenos Aires, Argentina. El diseño y construcción estuvo a cargo por el Estudio Geya en el 2008 en un lote de esquina de 15 x 30 metros.

El objetivo fue crear una vivienda con identidad propia, que responda al modo de vida de los clientes, con amplios ambientes, de adecuadas proporciones e integrada al exterior creando diversas sensaciones mediante el uso de la luz, el agua, los reflejos y los contrastes para crear así un confortable espacio para la vida cotidiana. La volumetría de la vivienda surge de la necesidad de dar respuesta a las diferentes fachadas que genera el lote.
Son dos volúmenes que se traban y producen distintos tipos de espacios que se interrelacionan. Prácticamente ciego desde el exterior.

Plano de Planta baja


La planta baja es un único gran ambiente que unifica estar, comedor y cocina: el lugar social. Hacia el fondo del terreno es totalmente transparente, aprovechando la mejor orientación y provocando un contacto directo con el césped y el agua de la piscina. El espacio semicubierto exterior, funciona como otro estar y lo relaciona visualmente con el interior, provocando la indefinición de los límites.
La escalera se ubica junto a un gran ventanal que da a un pequeño jardín, originado por el ahuecamiento del volumen de la planta alta.

Plano de Planta alta


La planta alta, sector de la vida privada, es un volumen revestido en Travertino, "cortado" por el ahuecamiento, el cual genera dos claras fracciones, una la habitación principal y la otra, el área de los futuros hijos.

El juego entre geometrías, transparencias y reflejos realza la arquitectura de la vivienda.

Plano de Corte longitudinal
 
Plano de Corte transversal
 
Plano de Corte vista
 
Plano de Vista sudoeste

Plano de Vista sudeste
 
Plano de Vista noroeste

Plano de Corte vista noroeste

Fuentes: estudiogeya.com.ar, arquimaster.com.ar

Saturday, November 14, 2009

PLANO DE CASA DE 160M2 3 PISOS 4 DORMITORIOS

Esta casa de 160 metros cuadrados (141 m2 + 19 de terraza), cuenta con 3 pisos, 4 dormitorios mas un cuarto de servicio.

El primer piso tiene una cochera o garaje y jardin, sala comedor, cocina, lavandería, 2 baños y cuarto de servicio. El segundo nivel tiene 3 dormitorios, 2 baños y una sala de estar. En la tercera planta esta el dormitorio principal, baño, walking closet y la terraza.
Esta bonito el plano verdad? Este plano de casa pertenece al tipo de casa A de Terrabella casas en condominio, que desarrolla la empresa inmobiliaria Buenavista Constructora.
El proyecto TERRABELLA , CASAS EN CONDOMINIO se encuentra ubicado en el sur de la ciudad de Cali - Colombia, a solo 200 metros del nuevo Hipercentro LA 14 del Lili. A 2 minutos del centro comercial Jardín Plaza, Home Center, Carrefour, y cerca de Unicentro, Holguines Trade Center; clínica como la Fundación Valle del Lili.
Plano de conjunto del proyecto TERRABELLA CASAS EN CONDOMINIO

Son casas en condominio. El conjunto tiene 110 casas de tres pisos. Tiene vias vehiculares al interior con acceso a cada casa. Tienen el garaje cubierto dentro de la casa. Antejardin al interior del conjunto. Amplio patio interior, únicas con cuarto y baño de servicio. Patio deropas independiente de la cocina. Baño social en el primer piso.
Zonas comunes: Este proyecto zonas verdes al interior del conjunto. Tiene dos piscinas, una para adultos, otra para niños; juegos infantiles y un salón para reuniones. Amplia zona verde aledaña al conjunto.
Tipo de construcción utilizada: Mampostería Estructural.
¿Qué es mampostería estructural?
Es un tipo de construcción en el cual se utiliza bloques de arcilla o cemento que posee perforaciones verticales que al estar pegado el muro, se refuerzan con acero y concreto, dependiendo de lo exigido en el cálculo estructural. En el sentido horizontal se refuerzan los muros con aceros estructurales denominados grafiles. En el proyecto todos los muros son en ladrillo de arcilla con color es en bloque de cemento.
¿Qué ventajas tiene el sistema de mampostería estructural?
Por ser en bloque de arcilla el interior de la casa es mucho más fresco que en otro tipo de construcciones. Igualmente el espesor de la pared es mayor, lo cual sirve como aislamiento acústico entre las casas y como se mencionó anteriormente, aislamiento térmico con el exterior, importante por las temperaturas altas.
Fuente: buenavistaconstructora.com

Tuesday, November 3, 2009

DEPARTAMENTO DUPLEX DE 179M2

DEPARTAMENTO DUPLEX DE 179M2 ubicado en la mejor zona de San Borja, cerca a Chacarilla - Lima Perú. Cuenta con 2 cocheras y 3 dormitorios, baño de visita en área social. Amplios Ambientes:
Primer piso:

Segundo nivel:

Plano de: felthe.com

Saturday, October 10, 2009

PLANO DE CASA DE UN SOLO DORMITORIO


Plano de casa de una sola habitación de 103m3. Con jardín, sala comedor, cocina, baño, walking closet, etc.

Tuesday, October 6, 2009

Planos Para Casas


Estos son 2 planos muy bien distribuídos. La primera casa tiene 2 recámaras y estudio, la segunda casa tiene 3 dormitorios. Estas casas son de un proyecto de condominio en Cancún México, con viviendas que varían desde los 145m2 hasta los 340m2.
Planos: marinaturquesa-cancun.com

Sunday, October 4, 2009

PLANOS DE DEPARTAMENTOS EN ESQUINA EN UN EDIFICIO DE 5 PISOS

Estos son planos triangulares de 2 tipos de departamentos de un proyecto en esquina llamado "Edificio Los Jardines" ubicado en Chiclayo, Lambayeque, Perú. El proyecto se desarrolla en un terreno de forma triangular, con dos frentes, y uno que limita con propiedad de terceros. Las dimensiones del terreno son: Por el Norte con un pasaje con 31.55mts lineales, por el Sur con 27.26mts lineales, por el poniente con 18mts lineales, la forma triangular tiene la base más ancha hacia el norte.
Área techada: Primer piso (comercio), Segundo, Tercer, Cuarto y
Quinto piso : 239.07m2 cada piso.
Azotea - Cuarto de máquinas : 27.94m2
Total de área techada : 1223.29m2
Área libre : 40.93m2
Área del terreno : 280m2
Son 9 exclusivos departamentos de 106m2 y de 122m2, con 3 dormitorios con closet, el dormitorio principal con baño, sala, comedor, terraza, baño de visita, cocina con comedor de diario, patio lavandería, dormitorio de servicio con baño, estacionamiento con control remoto, video portero, cerco eléctrico, etc.
Las fotos de la fachada de este edificio pueden verlas en FACHADAS.
PROMUEVE Y CONSTRUYE: IARPAME INMOBILIARIA CONTRATISTAS GENERALES S.A.C - web: iarpame.com

Wednesday, September 30, 2009

PLANOS DE DEPARTAMENTOS EN EDIFICIO FRENTE AL MAR - DE 8 PISOS

Estos son planos de viviendas en edificio, de 91m2 a 105m2.

Plano de Departamento 101

Plano de Departamento 201

Plano del Departamento 202

Plano del Departamento 301
Los departamentos cuentan hasta con 3 dormitorios con closet, dormitorio principal con baño, sala comedor, terraza, baño de visita, cocina con comedor de diario, patio lavandería, dormitorio de servicio con baño, estacionamiento con control remoto, video portero, cerco eléctrico. Al parecer por las fotos, contarán con acabados de primera, ascensor y piscina en el último piso. Estos planos muy bien distribuidos son del proyecto del Edificio "ALTAMIRA" en el distrito de Pimentel, Provincia de Chiclayo, Lambayeque, Perú.
Planos Departamentos 302, 402, 502, 702
Estas viviendas en edificio con vista al mar, estan en venta por IARPAME INMOBILIARIA CONTRATISTAS GENERALES S.A.C. y cuentan con todas las comodidades que se puede ofrecer. Av. Balta # 2236 urb. Latina / Telf: 074-253027 y 074-979638523 / iarpame@iarpame.com 

Las fotos de la fachada de este edificio en: FACHADAS .

Monday, September 28, 2009

PLANO DE VIVIENDA DE 2 PLANTAS CON COCHERA, PATIO Y 3 DORMITORIOS - LOTE DE 120M2

Plano de casa de 2 pisos construidos en un lote de terreno de 120 m2 y 108 m2 de construcción. Plantas Arquitectonicas:


Planta Baja: •Pórtico de Acceso •Amplia sala con area vestibular en el acceso •Amplia área de comedor •Excelente y funcional cocinaMedio baño con altura completa
Planta Alta: •Amplia área vestibular •Master Bedroom con walk in closet
•Dos recámaras secundarias •Segundo baño completo

Los planos son de un bello proyecto de vivienda llamado Residencial Puerta del Valle de deciudades.com, son unas lindas casitas de 2 pisos, que estan a la venta en Mexico, ubicado al norte de la ciudad muy cerca del Periférico de la Juventud, con fácil acceso y en una buena zona. El Modelo de la casa es de estilo Californiano, excelente distribucion y manejo armónico de los elementos de las fachadas.

Saturday, September 26, 2009

PLANO DE CASA GRANDE TRIANGULAR DE UNA SOLA PLANTA 3 DORMITORIOS

PLANOS DE CASA DE FORMA TRIANGULAR
Me encantó este plano triangular porque entra luz a la casa por todas partes ya que se encuentra rodeada de jardines. En realidad es un terreno rectangular donde la casa es en forma de triágulo y la sala comedor, el dormitorio principal y la cocina tienen vista a la piscina y jardín, el resto de habitaciones y ambientes tiene vista al jardín. Los dormitorios no son tan grande pero se utiliza muy bien el espacio, incluso tiene cochera para 2 o más carros. No se cuantos metros cuadrados deba tener el terreno para este plano triangular, pero estimo que debe tener unos 22m de fondo y unos 18m de frente, es decir aproximadamente de 400m2
Imagen de plano de distribución de planta: floorplanner.com

Wednesday, September 23, 2009

PLANOS DE VIVIENDAS EN EDIFICIO Y CONDOMINIOS - VIDEO 3D DE PROYECTO ARQUITECTONICO

Unos excelentes planos de departamentos en edificios y condominios, del proyecto La Cascada. El video 3d nos muestra la distribución de planta.

Son 4 Blocks A-B-C-D, 5 Casitas condominio desde 270 mts2 A.O., 15 Flats. 2 y 3er. piso de 104 - 183 - 206 Mts2., 6 Duplex 4to. piso desde 340 mts2. A.O., 4 Ascensores, Cuarto de Estudio, 3 Dormitorios con closets, 3 1/2 Baños, Cocina con reposteros altos y bajos, Lavanderia, Sala comedor, Cuarto y baño de servicio, Cochera simple y cocheras dobles. Estos bellos departamentos estan en venta por inversioneslima.com en la Urbanización El Derby - Surco - Lima - Perú.





Monday, September 21, 2009

PLANO DE CASA DE UN PISO CON 2 DORMITORIOS - PLANO CUADRADO DE 10X10 PARA VIVIENDA DE 100 METROS CUADRADOS


Este plano es para construir una casa de un solo piso. Tiene 10.97 metros de profundidad (36 pies) y 10.06 metros de ancho (33 pies) que hacen un total de 110 m2, practicamente es una casa cuadrada de 10x10. En este pequeño terreno se puede tener 2 dormitorios o habitaciones y 2 baños, lavandería, etc.. La cocina se integra con la sala comedor con una barra americana que da mas amplitud al espacio.

Friday, September 18, 2009

PLANO DE DEPARTAMENTO DE 90 METROS CUADRADOS CON 3 DORMITORIOS Y 2 BAÑOS


Plano de vivienda de 90.72m2 que consta de sala/comedor, 3 dormitorios (el principal con wcl), 2 baños, cocina, lavandería, terraza, sala de estar, baño de servicio.
Departamentos en venta por parquesdelahuaca.com.pe de la empresa SanJosé Perú.

Tuesday, September 15, 2009

PLANOS DE DEPARTAMENTOS PEQUEÑOS DE 70M2 A 80M2

Estos planos con muy buena distribución, son del proyecto Jardines de la Marina, unos bellos mini departamentos en venta en Lima Perú que vende Urban.com.pe .
Estan dentro de un condominio cerrado con caseta de vigilancia, 5 edificios de 10 pisos, ascensores mas de 1300 m2 de áreas de esparcimiento (piscinas, juegos recreativos, juegos recreativos, parrillas), casa club (gimnasio, internet, salón de usos múltiples).
Son departamentos con 3 dormitorios, 2 baños completos + baño de servicio, sala, comedor, ascensor, terraza con balcón, lavandería y muebles de cocina. Aqui algunas fotos de como son estos departamentos por dentro:

Sunday, September 13, 2009

PLANO DE CASA DE DOS PISOS 132 METROS CUADRADOS

Plano de casa de 132 mt². Terreno de 7 metros de frente x 19 m de fondo (133 m2). Tres dormitorios y cochera para 2 carros y patio o jardín:
Planta Baja

•Baño de visitas  •Garaje para dos automóviles •Dormitorio de servicio con baño completo •Comedor más grande •Sala separada de comedor
Planta Alta
•Dormitorio principal con walk-in closet y baño •Segundo baño completo  •Dormitorio dos •Dormitorio tres •Sala familiar
Fotos de planos: condadosannicolas.com

Saturday, September 12, 2009

PLANOS DE CASA DE 180 METROS CUADRADOS CON 133 M2 DE TERRENO 3 DORMITORIOS Y CUARTO DE SERVICIO

Plano de casa de 180 mt². Terreno de 7 metros de frente x 19 m de fondo (133 m2). Tres dormitorios y 1 cuarto de servicio, cochera para 2 carros y patio o jardín:
Planta Baja: •Baño de visitas a nivel •Garaje para dos automóviles •Sala con salida a terraza •Dormitorio de servicio con baño completo •Comedor más grande •Cocina con comunicación directa a car port  •Lavandería
Planta Alta: •Dormitorio principal con walk-in closet, baño y balcon •Segundo baño completo •Dormitorio dos •Dormitorio tres •Tercer baño completo •Sala familiar
Planos Para Casas: condadosannicolas.com, el proyecto de viviendas se llama Villa de San Nicolás en Guatemala.

Friday, September 11, 2009

PLANOS DE CASA DE 141M2 PARA UN TERRENO DE 133 METROS CUADRADOS CON 3 DORMITORIOS

Plano de casa de 141 mt². Terreno de 7 metros de frente x 19 m de fondo (133 m2). Tres dormitorios y  cochera para 2 carros y patio o jardín:
Planta Baja: •Sala - Comedor  •Baño de visitas •Cocina - Lavanderí­a •Parqueo para 2 automóviles, uno techado y otro descubierto
Planta Alta: •Dormitorio principal con baño completo •2 Dormitorios secundarios que comparten 1 baño  •Sala familiar con balcón
Fuente: condadosannicolas.com, el proyecto se llama Villa de San Nicolás en Guatemala.

Wednesday, September 9, 2009

PLANO DE CASA DE 187M2 EN DOS PISOS Y 150M2 DE TERRENO - PLANOS DE CONDOMINIO

Plano de casa de 187 mt². Terreno de 7.50 m de frente x 20 m de fondo. Tres dormitorios y 1 cuarto de servicio, cochera y:
Planta Baja o primer piso:
Vestíbulo de ingreso, Sala independiente, Baño de vistas, Comedor independiente, Cocina, Garaje para dos automóviles, Dormitorio de servicio con baño completo, Lavandería.
Planta Alta o segundo piso:
Dormitorio principal con walk-in closet y baño, Dormitorio 2 con baño incorporado, Dormitorio 3, Tercer baño completo, Sala familiar, Terraza.
PLANO DE CONJUNTO RESIDENCIAL


Estos planos son de unas muy lindas casas que estan en venta por condadosannicolas.com, el proyecto se llama Villa de San Nicolás en Guatemala. La casa será de 2 niveles, con acabados de lujo, ventaneria de PVC color blanco, pisos de cerámica, y techos de 4 aguas con teja. El proyecto llena todos los requisitos conforme a las exigencias de la camara de la construcción y al mismo tiempo está aprobado por el FHA ente especializado en la vivienda, asi mismo aprobado todo en la Municipalidad y el Ministerio de Ambiente.

Monday, September 7, 2009

PLANO DE DEPARTAMENTO DUPLEX DE 103M2 CON 2 DORMITORIOS

Area Ocupada: 103.00 m² , Area Techada: 103.00 m². Cuenta con 2 dormitorios y walk in closet, sala comedor, lavandería, cocina y 2 baños. Los departamentos del proyecto Puerto Madero en Miraflores, se venden en habitat.com.pe de Lima Perú. Las fotos de la fachada del edificio, la puedes ver en FOTOS DE FACHADAS.

Sunday, September 6, 2009

PLANOS DE CASA EN 60M2 DE 6 HABITACIONES

Estos planos corresponden a una casa de 6 habitaciones en 60 m2. Se trata de un loft donde el espacio no es problema porque el estudio francés H2O Arquitects ha sabido distribuirlo de la mejor manera:
Si quieren ver las fotos de como es esta casa por dentro y su decoración, pueden hacerlos en DISEÑO EN INTERIORES: LOFT DE 60M2.

PLANOS DE DEPARTAMENTO DUPLEX EN MIRAFLORES DE 3 DORMITORIOS

Planos Duplex: Primer nivel:


Planos Duplex: Segundo nivel:



Area Ocupada: 301.00 m², Area Techada: 197.00 m². Cuenta con 3 dormitorios mas un cuarto de servicio y una amplia terraza. Los departamentos del proyecto Puerto Madero se venden en habitat.com.pe de Lima Perú. Las fotos de la fachada del edificio, la puedes ver en FOTOS DE FACHADAS.

PLANOS DE DEPARTAMENTOS EN MIRAFLORES 155m2

Area Ocupada: 155.00 m², Area Techada: 155.00 m². Cuenta con 3 dormitorios mas un cuarto de servicio. Los departamentos del proyecto Puerto Madero se venden en habitat.com.pe de Lima Perú. Las fotos de la fachada del edificio, la puedes ver en FOTOS DE FACHADAS.